Direkt zum Inhalt
Startseite
  • Home
  • Leistungen
  • Referenzen
  • Über uns
  • Videos
  • Kontakt
Jetzt kostenlos anfragen
Jetzt kostenlos anfragen
  • Übersicht
  • Projektplanung Steuerbüro
  • Sonnenschutzanlage in einem denkmalgeschützen Haus
  • Wohnungsbaugesellschaft
  • Steharbeitsplatz
  • Empfangstheke
  • Steuerbüro
  • Behörde
  • Großhandelsunternehmen
  • Versicherungsbüro
  • Individuelle 3D-Planung
Jetzt Kontakt aufnehmen

Rufen Sie uns an, schreiben Sie eine Email oder benutzen Sie unsere Onlineanfrage.

Kontakt aufnehmen

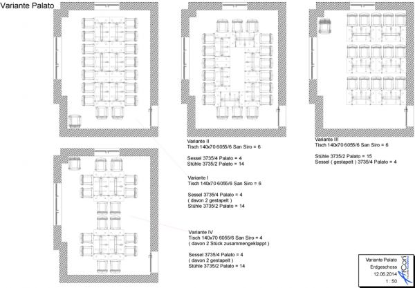
Projektplanung Steuerbüro

http://www.wiesner-hager.com/de/
http://www.waldmann.com
https://www.ultradex.de/de/
http://schulte-lagertechnik.de/
https://www.rovo.de/de/
http://www.lc-stendal.de/
http://klain.de/
https://www.kadeco.de/de/
https://www.hund-moebel.de/
http://www.frankenproducts.com/de/
https://www.februe.de/de/home/
http://www.schulmoebel-conen.at/
http://www.cascando.nl
http://www.cp.de

Leistungen

  • Betriebs- und Lagereinrichtungen
  • Konferenzraumeinrichtungen
  • Ergonomische Sitzmöbel
  • Büroausstattung & Schulausstattung
  • Medientechnik
  • Sonnenschutz
  • Beleuchtung
  • Info- & Wegeleitsysteme
  • Bodenbeläge & Raumdekoration
  • Vitrinen

Informationen

  • Impressum
  • Datenschutz
  • Onlineanfrage

Copyright Objekteinrichtung Uta Liemen 2026